Residence Halls
-
Centennial Hall
Centennial Hall Photos
Centennial Hall is our newest residence hall and features traditional community bathrooms.
- Co-ed residence hall
- Freshman and sophomore level housing
- 160 beds
- Community bath
- Central air
Floor Plan Key
C = Closet
S = Sink
Br = Bedroom
-
Trinity Hall
Trinity Hall Photos
Trinity Hall is one of the south residence halls, which features suite-style and private bathrooms.

- Co-ed residence hall
- Freshman and sophomore level housing
- 60 beds
- Suite and private bath
- Central air
Floor Plan Key
C = Closet
B = Bathroom
Br = Bedroom

-
Knutson Hall
Knutson Hall Photos
Knutson Hall is on the north side of campus and features community bathrooms.

- Co-ed living by wing
- Freshman and sophomore level housing
- 101 beds
- Community bath
- Central air
Floor Plan Key
C = Closet
S = Sink
Dr = Dresser
Br = Bedroom
-
Clifton Hall
Clifton Hall Photos
Clifton Hall is one of the south residence halls, which feature suite-style bathrooms.

- Co-ed residence hall by floor
- Freshman and sophomore level housing
- 95 beds
- Suite bath
- Central air
Floor Plan Key
C = Closet
Ba = Bathroom
Br = Bedroom
-
Baldus Hall
Baldus Hall Photos
Baldus Hall is one of the south residence halls, which feature suite-style bathrooms.

- Co-ed residence hall by floor
- Freshmen and sophomore level housing
- 92 beds
- Suite bath
- Central air
Floor Plan Key
C = Closet
B = Bathroom
Br = Bedroom
-
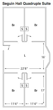
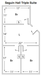
Seguin Hall
Seguin Hall Photos
Seguin Hall features both community bathrooms and suite-style bedrooms.

- Co-ed residence hall by floor/wing
- Freshman and sophomore level housing
- 174 beds
- Community bath
- Central air
Floor Plan Key
S = Sink
L = Living Space
Br = Bedroom


-
Hahn Hall
Hahn Hall Photos
Hahn Hall is reserved for junior and senior level students
- Co-ed residence hall
- 50 beds
- Community bath
- Central air
Floor Plan Key
S = Sink
C = Closet
Br = Bedroom